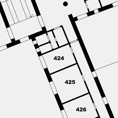
Kancelář 424 – od 1. 1. 2026

Adresa: Senovážné náměstí 23, místnost 424

Výměra: 13,00 m2

Cena 600 Kč/m2 měsíčně, včetně služeb bez DPH

Služby jsou obsaženy v ceně za m2 a zpětně se nerozúčtovávají.

Mám zájem

Cena: 600,00 Kč

Popis místnosti

Místnost 424 se nachází ve 4. patře budovy A, okna má do atria.

V blízkosti místnosti se nachází 4 výtahy a sociální zařízení.

Vlastnosti

výměra 13,00
nájem 600 Kč/m²
výhled atrium